Call4Service
+420 313 333 111 Telefon
Kontaktní formulář
Newsletter
Parts Online

Jaké rozměry zohlednit při výběru vozíku?

Abychom Vám usnadnili orientaci v jednotlivých parametrech a co znamenají, připravili jsme stručný popis rozměrů a rady na co si dát pozor. Výhodou je, že většina výrobců využívá v Evropě jednotný formát typového listu a značení parametrů. Takže lze hodnoty snadno porovnávat napříč značkami.

Většina uživatelů vysokozdvižných a nízkozdvižných vozíků bere jako hlavní parametry pro výběr nosnost a zdvih. Tyto dva parametry mají ale obrovský vliv na rozměry samotného vozíku. Přitom s ohledem na prostorové podmínky skladu, kvalitu podlahy, výšku průjezdů a další parametry prostředí, kde bude vozík nasazen, mohou ovlivnit možnosti výběru vozíku.

VÝŠKA VOZÍKU

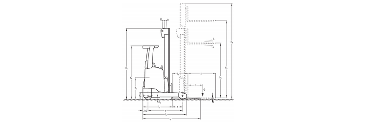
Jedním z nejdůležitějších rozměrů vysokozdvižného resp. nízkozdvižného vozíku je jeho výška. Pokud bude vozík vybaven sloupem zdvihu, bude se jednat (v naprosté většině případů) o nejvyšší bod na vozíku. Dveře, brány nebo kontejnery v provozu je nutné bezpečně projet i s tímto sloupem. Rozměry sloupů zdvihu se liší podle výšky zdvihu, přičemž velký vliv má typ sloupu (jednoduchý - mono, dvojitý - duplex, trojitý - triplex).

Rozměry retrak

Výška vysokozdvižného nebo nízkozdvižného vozíku je tedy určena výškou sloupu zdvihu (h1) v zasunutém stavu, případně výškou ochranné střechy (h6) pokud je vyšší, než h1. Tato výška rozhoduje o tom, které oblasti skladu je možné projet bez poškození vozíku, břemene nebo budovy.

Měli byste vzít v úvahu:

  • Průjezdné výšky dveří
  • Průjezdné výšky bran v halách
  • Průjezdné výšky vychystávacích ploch
  • Vychystávací uličky v regálových systémech
  • Zavěšené součásti stropů
  • Výtahy

Doporučujeme zkontrolovat všechny oblasti skladu nebo provozu, kterými má předpokládaný vozík projíždět. Myslete rovněž na výšku vozíku, pokud chcete se svým vysokozdvižným nebo nízkozdvižným vozíkem obsluhovat nákladní automobily (standardní vnitřní výška 2600 mm), železniční vagóny (2000 mm) nebo kontejnery (výška dveří 2280–2585 mm).

Při práci je rovněž důležité vědět, do jaké výšky se může zboží uskladňovat. Z tohoto důvodu je důležitá výška zdvihu (h3): Ne vždy jsou patky palety ve stejné výšce jako základna vidlí, ale přečnívají při překládce směrem dolů. Zde je nutná větší výška zdvihu, aby bylo možné paletu založit na požadovanou úroveň.

Výška sloupu zdvihu (h4), tzv. konstrukční výška ve vysunutém stavu, je naopak důležitá, pokud se mají provádět práce ve velké výšce, např. přímo pod střechou haly. Výška h4 je vyšší, než výška zdvihu a v případě nízkých palet může hrozit při zakládání do poslední úrovně kolize s konstrukcí stropu.

Rovněž je důležité, aby měl vysokozdvižný nebo nízkozdvižný vozík tzv. volný zdvih (h2). Díky němu je možné transportovat palety ve zdviženém stavu. Volný zdvih rovněž zabraňuje tomu, aby špičky vidlí klouzaly během jízdy po povrchu. Zvláštním případem je velký volný zdvih nad 1000 mm. Ten je nutný při stohování v kontejnerech nebo při projíždění nízkých bran v naloženém stavu.

SVĚTLÁ VÝŠKA VOZÍKŮ

Rozměry vysokozdvižných nebo nízkozdvižných vozíků by měly zaručovat dostatečnou světlou výšku (zejména m2, střed rozvoru kol). Světlá výška je převážně určena velikostí pneumatik vozíku. Pokud je rozměr příliš malý, může už při malé nerovnosti povrchu dojít k dosednutí. Vysokozdvižné vozíky s rameny kol (bez protizávaží) mají např. relativně malou světlou výšku.

Rental

Dbejte na to, aby kritické „zlomy ve stoupání“ v pracovním prostředí nevykazovaly nepříznivý úhel a sklon stoupání byl mezi 8 a 12,5 %: Tím se umožní přejezd bez kolize. S ohledem na úhel naklápění a světlou výšku Vašeho vozíku byste měli vždy přesně vyhodnotit přechodový zlom mezi rovinou a stoupáním. Některé vysokozdvižné nebo nízkozdvižné vozíky mají tzv. „rampový zdvih“, pro vyrovnání příkré hrany.

Sklon (%) = h/l*100

  • h = převýšení (metr)
  • l = základna nakloněné plochy (metr)

Sklon

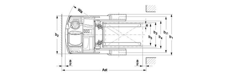
ŠÍŘKA VOZÍKU

Zejména při nakládání a vykládání nákladních automobilů, vagónů nebo kontejnerů platí: Čím menší je šířka (b1) vozíku, tím rychleji se může vozík otáčet a manévrovat. V zúžených prostorách získáte s úzkými vysokozdvižnými nebo nízkozdvižnými vozíky cenné sekundy. U úzkých vozíků odpovídá šířka nosiče vidlí (b3) většinou celkové šířce. Přesto můžete s těmito malými vozíky přepravovat europaletu.

Šířka vozíku

Široký vozík vyžaduje při přepravě v uličce více místa. Širší rozchod kol (b10 vpředu, b11 vzadu) ale umožňuje lepší stabilitu a stabilnější jízdu v zatáčkách. Velké a neskladné zboží lze širokým vozíkem pohodlně přepravovat a uskladňovat. Protože jsou i nosiče vidlí širší, je možné přepravovat těžká břemena tímto způsobem rychle a přesně. Pokud je ale hmotnost zboží vyšší než 2 až 2,5 tuny, doporučujeme vozíky s velkou nosností, u kterých jsou rozměry dimenzované velkoryse a konstrukční prvky jako rám zdvihu, oj a kola jsou zesílené.

OTÁČIVOST A DÉLKA VOZÍKU

Abyste mohli se svým vozíkem v běžném provozu manévrovat rychle a přesně, měli byste dbát na délku vozíku (L2). Ta je určena zejména délkou vidlí. Délka vidlí činí podle normy ISO FEM3a a FEM3b 11502400 mm. Zejména, když jedete s vysokozdvižným nebo nízkozdvižným vozíkem v nákladním automobilu nebo používáte výtah, jsou krátké rozměry vozíku důležité: Potřebujete manévrovat rychle a přesně v co nejmenším prostoru.

Tzv. délka přední nástavby vozíku určuje kromě šířky vozíku (b1) a poloměru otáčení (Wa) potřebnou šířku pracovní uličky. Šířka pracovní uličky je vzdálenost protějších skladovacích jednotek a je určena mj. druhem a typem vozíku – podle toho, kolik prostoru potřebuje vozík při otáčení a při naskladňování.

Obratnost vozíku je dána rovněž rozvorem kol (y). Malý rozvor kol sice zmenšuje poloměr otáčení, ale zhoršuje jízdní vlastnosti. Může tak dojít k ohrožení stability v zatáčce při jízdě s břemenem.

Dále byste si měli rozmyslet, jestli je pro Vaše potřeby lepší tříkolový nebo čtyřkolový vozík. Tříkolové vysokozdvižné vozíky jsou obratnější, protože se lépe a rychleji ovládají díky přímo řiditelnému zadnímu kolu. Potřebný poloměr otáčení téměř odpovídá délce vozíku a je velmi malý. Vysokozdvižný vozík se 4 koly vyžaduje více prostoru pro otáčení nebo manévrování.

Máte otázky?